RENNES Bd de Metz – Grand T4 avec splendide terrasse !

RENNES Bd de Metz – Grand T4 avec splendide terrasse !

Vente

666.000€ FAI

  • CBN11714-17092025-022541
  • CBN11714-17092025-022541-1
  • CBN11714-17092025-022541-2
  • CBN11714-17092025-022541-3

Référence du bien :

 CBN11714

Partager

Imprimer

Chambre(s)

3

SDB/SDE

1

Stationnment(s)

1

Surface

93

Description

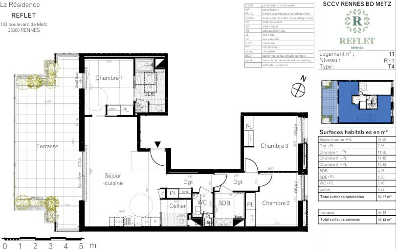
RENNES Bd de Metz – Au sein d’une résidence de standing, COGIR Immobilier vous présente ce beau T4 de 93.37 m². Il comprend une entrée, un spacieux salon-séjour de 33.20 m² desservant une magnifique terrasse de plus de 36 m², 3 belles chambres équipées de placard, une salle de bain, une salle d’eau, WC séparés ainsi qu’une buanderie.
Vous bénéficierez également d’un stationnement.

A visiter sans tarder ! Ref. CBN11714

Corinne BOUFFORT – 06.08.47.94.30 – corinne.bouffort@cogir.fr
Les informations sur les risques auxquels ce bien est exposé sont disponibles sur le site Géorisques : www. georisques. gouv. fr

Diagnostic de Performance Energétique
NC

Situer le bien

Biens similaires

Une question ?
Contactez-nous.
 
Tel: 02 99 79 31 21

Adresse: 
6 place du Parlement
35000 Rennes
formulaire de contact
close-link
CONTACTEZ-NOUS